Skip to main content

Floor Plans

Floor Plans With Viewing Stands
Floor Plan Showing Views
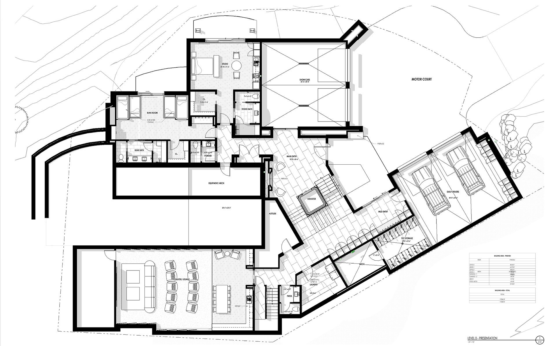
Bald Eagle 21 Floor Plan Entry Level
Entry Level
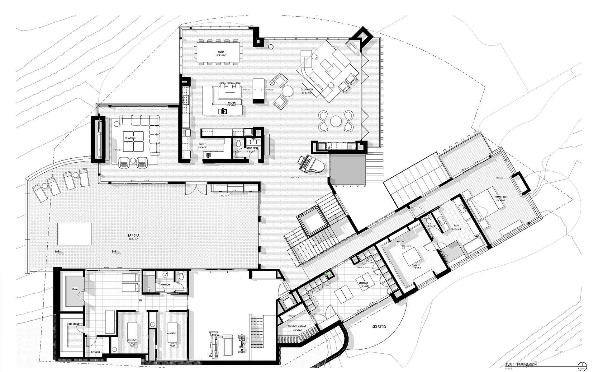
Bald Eagle 21 Floor Plan Living Level
Main Level
Bald Eagle 21 Floor Plan Living Level
Living Level
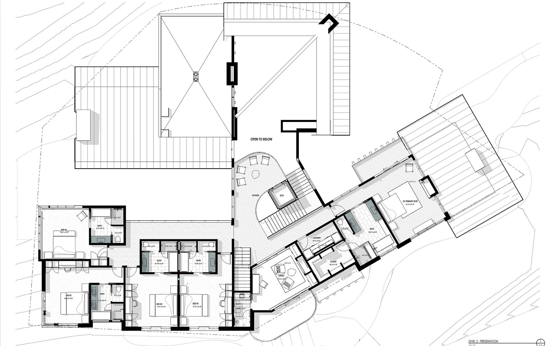
Bald Eagle 21 Floor Plan Penthouse Level
Penthouse Level

Level 0

Zero Threshold Entry
Commercial Grade, Glass Elevator
Private Theater: Seating 20
Staff Quarters 
Bunk Room: Sleeping 7
Laundry
2 Powder Rooms
Dual, 2-Car Garages
Outdoor Sport Equipment/Bike Storage
Mechanical Room

LEVEL 1

Commercial Grade, Glass Elevator
Great Room
Kitchen
Dining
Pantry
Entertainment Lounge
Patio Deck
Heated Lap Pool/Spa
Wellness/Fitness Center 
Ski Locker/Storage Room
Direct Access to Ski Runs
Owners’ Suite/Viewing Deck
Powder Room

LEVEL 2

Commercial Grade, Glass Elevator
Study Lounge
Owners’ Suite/Viewing Deck
Laundry
Owner’s Office
Four Guest Suites

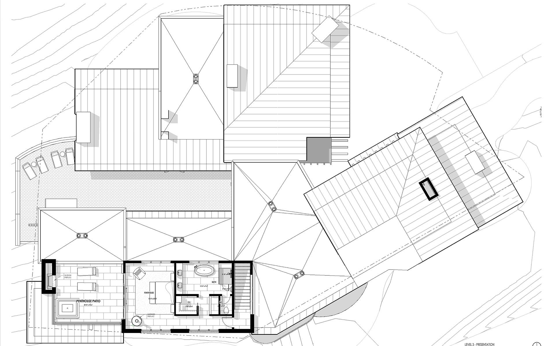
LEVEL 3

Owners’ Suite with Large Private Patio/Outdoor Fireplace